Kijck
Terug naar het overzicht

Krugerplein 2- IV

Bent u geïnteresseerd in dit huis?

Vraag een bezichtiging aan

Bel of mail ons. Of stuur ons een bericht

De bezichtigingsrondes zijn bij deze woning helaas al vol

Ik wil graag een bezichtiging inplannen

Omschrijving

Direct online een bezichtiging inplannen? Ga naar onze website!

Direct online een bezichtiging inplannen? Ga naar onze website!

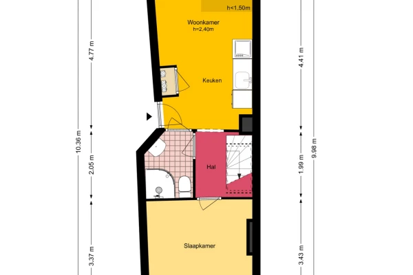
Knus en compleet 2-kamerappartement (ca. 26 m²) op toplocatie in Amsterdam-Oost – met potentie voor dakterras
Op zoek naar een charmante, knusse woning met alles erop en eraan, midden in Amsterdam-Oost? Dit goed ingedeelde 2-kamerappartement op de bovenste verdieping van het pand aan het Krugerplein 2-4 is tot in detail doordacht. Compact, comfortabel en volledig instapklaar – ideaal voor een starter of stel dat op zoek is naar een fijne eigen plek in de stad.

Wonen onder de kap – knus, gezellig en slim ingedeeld
De woning bevindt zich op de zolderverdieping, zonder bovenburen. De sfeervolle woonkamer met open keuken voelt warm en gezellig aan. Dankzij de schuine kap, zichtbare balken en slimme indeling is elke vierkante meter optimaal benut. De keuken is modern en compleet uitgerust met onder meer een kookplaat, afzuigkap, koelkast en wasmachine.

Aparte slaapkamer met potentie
De aparte slaapkamer biedt ruimte aan een ruim tweepersoonsbed – een echte meerwaarde ten opzichte van een studio. Er is bovendien de mogelijkheid om extra licht en ruimte te creëren door het plaatsen van een dakkapel (na vergunning en goedkeuring van VVE).

Compacte badkamer
De nette badkamer beschikt over een douchecabine, wastafel en toilet. Praktisch en functioneel ingericht.

Kans op buitenruimte
Hoewel de woning zelf geen buitenruimte heeft, is er een vergunning van de gemeente afgegeven voor de aanleg van een dakterras. Met een besluit van de VvE kan dit worden gerealiseerd – een unieke kans om een eigen buitenplek met uitzicht over de stad te creëren.

Recent gerenoveerd en goed geïsoleerd
Het appartement is enkele jaren geleden grotendeels gerenoveerd (met uitzondering van de badkamer). Daarbij is extra aandacht besteed aan isolatie en duurzaamheid. De woning is volledig elektrisch en voorzien van vloerverwarming en een fraaie visgraatvloer.

BUURT MET ALLES BINNEN HANDBEREIK
Gelegen aan het Krugerplein bevindt de woning zich in een levendige buurt met alle faciliteiten binnen handbereik. Geniet van de gezellige terrassen, boetiekjes en de nabijgelegen parken die uitnodigen tot wandelen en fietsen. De centrale ligging maakt het eenvoudig om de diverse stadsdelen van Amsterdam te verkennen.

BEREIKBAARHEID DIE WERKT
Dankzij de centrale ligging ben je met het openbaar vervoer of de fiets binnen enkele minuten in de populaire stadsdelen. Of je nu snel de metro moet halen of de stad op de fiets wilt ontdekken, de bereikbaarheid is uitstekend.

EIGEN GROND
Geen erfpacht. Geen canon. Dat geeft rust en maakt dit appartement extra aantrekkelijk voor de lange termijn.

BIJZONDERHEDEN 
2-kamerappartement van ca.26 m² (NEN 2580-meetrapport aanwezig)
Energielabel D;
Bovenste verdieping, geen bovenburen
Grotendeels gerenoveerd en goed geïsoleerd
Gasloos, volledig elektrisch en daarmee toekomstbestendig 
Vloerverwarming en visgraatvloer
Mogelijkheid voor dakterras (vergunning aanwezig, VvE-besluit nodig)
Potentie voor dakkapel aan de achterzijde
Gelegen op eigen grond (geen erfpacht)
VvE-bijdrage ca. € 90 per maand
Er is een ondersplitsing gaande tussen verdieping 3 en 4;
Oplevering in overleg
Koopakte volgens Amsterdams Ringmodel

Een unieke kans 
Een compleet en sfeervol appartement op eigen grond, zonder bovenburen, met uitbreidingsmogelijkheden en gelegen op een toplocatie – dat vind je niet vaak. Perfect voor wie compact, comfortabel en centraal wil wonen.
Interesse? Plan vandaag nog een bezichtiging en ontdek de charme van dit gezellige appartement aan het Krugerplein!

Bekijk volledige omschrijving

Foto’s van het huis

Krugerplein 2- IV
Krugerplein 2- IV
Krugerplein 2- IV
Krugerplein 2- IV

Locatie

Weet u een potentiële koper? Deel dit huis via:

Heb u gevonden wat u zocht?

Beschikbaar

Krugerplein 2- IV

  • Amsterdam
  • 2 kamers
  • € 325.000,-
Weet u een potentiële koper? Deel dit huis via:

Kenmerken

Overdracht
Prijs) € 325.000,-
Aanmeld datum) 27 October 2025
Status) Beschikbaar
Aanvaarding) In overleg
Indeling
Aantal kamers 2
Aantal slaapkamers 1
Aantal woonlagen 4
Oppervlakten en inhoud
Woonoppervlakte 26 m2
Team Kijck