Kijck
Terug naar het overzicht

Citroenvlinderstraat 63

Bent u geïnteresseerd in dit huis?

Vraag een bezichtiging aan

Bel of mail ons. Of stuur ons een bericht

De bezichtigingsrondes zijn bij deze woning helaas al vol

Ik wil graag een bezichtiging inplannen

Omschrijving

Citroenvlinder 63 – Aalsmeer

Citroenvlinder 63 – Aalsmeer

Ruim, licht en instapklaar wonen in de geliefde wijk Nieuw-Oosteinde.

Welkom aan de Citroenvlinder 63. Deze fijne eengezinswoning ligt in een rustige en kindvriendelijke straat in één van de populairste wijken van Aalsmeer. Hier geniet je van ruimte, licht en comfort – ideaal voor gezinnen of iedereen die graag prettig en zorgeloos wil wonen.

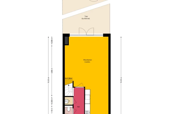
De woonkamer met een natuurstenen vloer (Azul cascais)  en vloerverwarming is aan de tuinzijde gelegen en is heerlijk licht dankzij de grote raampartijen. Hier vind je ook een prachtige en sfeervolle gashaard. Er is volop ruimte voor een gezellige zithoek en een eettafel. Aan de voorzijde bevindt zich de nette keuken die van alle gemakken is voorzien. Koken, borrelen of samen tafelen: het kan hier allemaal.

Op de eerste verdieping zijn drie goed bemeten slaapkamers en een verzorgde badkamer te vinden. De zolderverdieping is keurig afgewerkt en biedt een vierde slaapkamer, perfect als werkplek, logeerkamer of hobbyruimte.

De achtertuin is gelegen op het noorden, netjes aangelegd en voorzien van een ruime schuur. Hier kun je gemakkelijk je fietsen kwijt en is er volop bergruimte.

Nieuw-Oosteinde is een jonge, groene wijk op de grens van Aalsmeer en Amstelveen. In de buurt vind je alles wat je nodig hebt. Het winkelcentrum Nieuw-Oosteinde ligt om de hoek met een supermarkt en diverse speciaalzaken. Er zijn uitstekende verbindingen met het openbaar vervoer richting Schiphol, Amstelveen en Amsterdam. Ook de uitvalswegen A9, A4 en A2 zijn snel te bereiken, ideaal voor forenzen. De wijk is ruim opgezet met veel groen, plantsoenen en waterpartijen, en de Westeinderplassen liggen vlakbij voor ontspanning en watersport.

Goed om te weten: 
- Vier slaapkamers 
- Kant en klaar 
- Energielabel A 
- Heerlijke tuin 
- Oplevering in overleg;

Bekijk volledige omschrijving

Foto’s van het huis

Citroenvlinderstraat 63
Citroenvlinderstraat 63
Citroenvlinderstraat 63
Citroenvlinderstraat 63

Locatie

Weet u een potentiële koper? Deel dit huis via:

Heb u gevonden wat u zocht?

Beschikbaar

Citroenvlinderstraat 63

  • Aalsmeer
  • 5 kamers
  • € 600.000,-
Weet u een potentiële koper? Deel dit huis via:

Kenmerken

Overdracht
Prijs) € 600.000,-
Aanmeld datum) 06 November 2025
Status) Beschikbaar
Aanvaarding) In overleg
Indeling
Aantal kamers 5
Aantal slaapkamers 4
Oppervlakten en inhoud
Woonoppervlakte 109 m2
Team Kijck